pronajem-budejovice.cz vše co je k pronájmu v Českých Budějovicích

Pronájem v Českých Budějovicích

Pronájmů všech druhů nemovitostí – byty, rodinné domy, vily, chaty, zahrady, pozemky a komerční nemovitosti v Českých Budějovicích a jejich okolí najdete mnoho. Pokud si však z naší nabídky nevyberete, vyplňte jednoduchý formulář, a my pro Vás vhodnou nemovitost najdeme.

Najděte mi pronájem

Hlavní prostor, pronájem nebyt, Skuherského, České Budějovice
Popis nemovitosti:

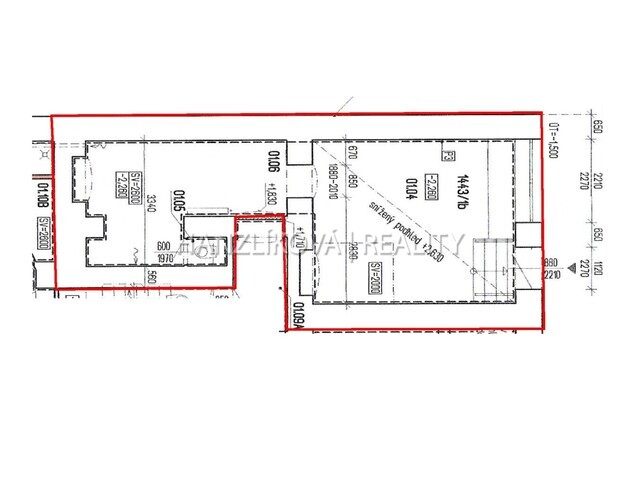
Nabízíme k pronájmu kompletně zrekonstruovaný nebytový prostor o celkové výměře cca 33 m2, který se nachází v 1. NP (snížené přízemí) činžovního domu v centru města, a to v ulici Skuherského. Prostor prošel kompletní rekonstrukcí a skládá se z: hlavní místnosti se dvěma okny do ulice (22,28 m2), zadní místnosti a sociálního zázemí včetně sprchového koutu. Prostory je možné využít k jako kancelář, menší prodejnu nebo pro kosmetické služby. K prostoru je možné poskytnout navíc skladový prostor v domě o výměře cca 18 m2. Prostory jsou k dispozici ihned.

Číslo nemovitosti:
0000003308
realitní makléř: Lenka Michalová (Klimešová)
Prodejce:
Lenka Michalová (Klimešová)
telefon: +420 606 772 414
lenka.klimesova@hanzlikovareality.cz

Máte dotazy? Kontaktujte nás:

* Vaše jméno a příjmení
* Email pro odpověď
* Telefon
* Váš vzkaz
 

Nebytový prostor k využití jako kancelář, menší prodejna nebo poskytování služeb, ulice Skuherského

Typ nemovitosti:
Komerce
Typ komerce:
Kancelář
Operace:
Pronájem
Cena:
8.000 ,- za měsíc+ energie cca 2.000 Kč + kauce 10.000,-
Adresa:
České Budějovice
Skuherského
K nastěhování od:
5.2.2026
Plocha podlahová:
33 m2
Podlaží:
Snížené přízemí z 2 podlaží celkem
Stav objektu:
Po rekonstrukci
Konstrukce:
Cihlová
Umístění objektu:
Centrum obce
Komunikace:
Asfaltová
Rok rekonstrukce:
2026
Číslo nemovitosti:
0000003308
Vydaný certifikát:
G - Mimořádně nehospodárná
Typ certifikátu:
vyhláška č. 78/2013 Sb.

HANZLÍKOVÁ REALITY s.r.o.
tel: +420 777 814 103
hanzlikovareality@seznam.cz

Adresa:
B. Smetany 2773/36
České Budějovice 3
370 01