pronajem-budejovice.cz vše co je k pronájmu v Českých Budějovicích

Pronájem v Českých Budějovicích

Pronájmů všech druhů nemovitostí – byty, rodinné domy, vily, chaty, zahrady, pozemky a komerční nemovitosti v Českých Budějovicích a jejich okolí najdete mnoho. Pokud si však z naší nabídky nevyberete, vyplňte jednoduchý formulář, a my pro Vás vhodnou nemovitost najdeme.

Najděte mi pronájem

26-04-02 Dobrá Voda - Hornická 53 RD_2_00000.jpg
Popis nemovitosti:

Nabízíme k prodeji řadový rodinný dům v jedné z nejoblíbenějších a klidných částí obce Dobrá Voda u Českých Budějovic, v ulici Hornická.

Dům se nachází v stabilizované zástavbě rodinných domů na vyvýšeném místě, které nabízí příjemné bydlení v zeleni, klid a zároveň výbornou dostupnost do centra Českých Budějovic.

Dobrá Voda je dlouhodobě vyhledávanou lokalitou díky kombinaci klidu, bezpečí a přírody. V bezprostředním okolí najdete lesy, množství zeleně i známý poutní kostel kostel Panny Marie Bolestné Dobrá Voda.

Lokalita nabízí kompletní občanskou vybavenost – v dosahu je škola, školka, obchody, restaurace i zastávka MHD s rychlou dostupností do centra města.

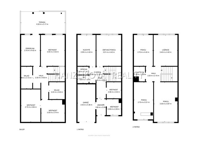
Dispozice a stav nemovitosti:
Dům byl postaven přibližně v 80. letech a je určen ke kompletní rekonstrukci, což ale přináší velkou výhodu – nový majitel si může vše přizpůsobit přesně podle svých představ.

Dispozice:

• 1. NP: vstup, pokoj/pracovna, koupelna, kuchyně, obývací pokoj
• 2. NP: 4 samostatné pokoje, původně lodžie (dnes součást interiéru – možnost obnovení)
• suterén: kompletní podsklepení domu (velký benefit oproti běžným řadovkám)
• garáž přímo v domě

Dům je napojen na veškeré inženýrské sítě.
Potenciál, který se dnes hledá těžko. Nemovitost nabízí široké možnosti využití:

• komfortní rodinné bydlení po rekonstrukci
• dvougenerační dům (možnost rozdělení na dvě jednotky)
• kombinace bydlení a podnikání
• investiční příležitost

Díky dispozici a podsklepení lze dům velmi variabilně upravit.

Shrnutí:
• klidná a bezpečná lokalita na Dobré Vodě
• zástavba rodinných domů, zeleň, lesy v okolí
• kompletní občanská vybavenost
• garáž + podsklepení (výjimečné u řadových domů)
• velký potenciál rekonstrukce dle vlastních představ

Pokud hledáte dům v lokalitě, kde se dobře bydlí a zároveň chcete vytvořit bydlení přesně podle sebe, tahle nabídka dává smysl.

Číslo nemovitosti:
0000003315
realitní makléř: Aneta Hanzlíková
Prodejce:
Aneta Hanzlíková
telefon: +420 777 814 103
aneta.hanzlikova@hanzlikovareality.cz

Máte dotazy? Kontaktujte nás:

* Vaše jméno a příjmení
* Email pro odpověď
* Telefon
* Váš vzkaz
 

Řadový rodinný dům na Dobré Vodě – skvělá lokalita, velký potenciál

Typ nemovitosti:
Dům, vila
Typ domu:
Rodinný dům
Operace:
Prodej
Cena:
7.550.000 ,-
Adresa:
Dobrá Voda u Českých Budějovic
Hornická 1828/53
Plocha pozemku:
331 m2
Plocha zastavěná:
121 m2
Sklepní podlaží:
1. sklepních podlaží
Stav objektu:
Před rekonstrukcí
Konstrukce:
Cihlová
Umístění objektu:
Klidná část obce
Číslo nemovitosti:
0000003315
Vydaný certifikát:
G - Mimořádně nehospodárná
Typ certifikátu:
vyhláška č. 264/2020 Sb

HANZLÍKOVÁ REALITY s.r.o.
tel: +420 777 814 103
hanzlikovareality@seznam.cz

Adresa:
B. Smetany 2773/36
České Budějovice 3
370 01